物件登録番号 378
花泉地域 売却
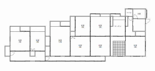
概要
| 所在地 | 一関市花泉町花泉 |
|---|---|
| 宅地面積 | 1298.65m2 |
| 物件種別 | 売却 |
| 建物構造 | 木造平屋 |
| 延床面積 | 220.29m2 |
| 利用状況 | 空き家になって10年 |
| 建築時期 | 不明 |
| 価格(所有者等希望価格) | 350万円(相談可) |
| 付帯物件 | 物置、倉庫、山林、田畑有 |
| 修繕必要の有無 | 大幅な修繕必要(床、天井) |
| 修繕の費用負担 | 入居者負担 |
設備
| 電気 | 引き込み済み | ガス | プロパンガス |
|---|---|---|---|
| 風呂 | 灯油 | 水道 | 上水道 |
| 下水道 | 無 | トイレ | 簡易水洗 |
| 車庫 | 有 | 物置 | 有 |
| 庭 | 有 | その他 | - |
