| 所在地 | 〒029-3402 一関市藤沢町新沼[ 周辺MAP ] |
|---|---|
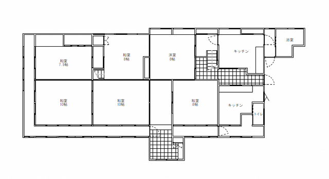
| 宅地面積 | 642㎡ |
| 物件種別 | 居宅 |
| 建物構造 | 木造銅板葺平家 |
| 延床面積 | 143㎡ |
| 建築時期 | 築80年以上 |
| 利用状況 | 空き家になって10年 |
| 価格(所有者等希望価格) | 300万円 |
| 付帯物件 | 物置有 |
| 修繕必要の有無 | 大幅な修繕必要(主に床) |
| 修繕の費用負担 | 要相談 |
| 設備 | 電 気:引き込み済 ガ ス:無 風 呂:灯油 水 道:上水道 下水道:浄化槽 トイレ:簡易水洗 車 庫:なし 庭 :有 |
| その他 | 付帯物件:農地あり |


| 所在地 | 〒029-3402 一関市藤沢町新沼[ 周辺MAP ] |
|---|---|
| 宅地面積 | 642㎡ |
| 物件種別 | 居宅 |
| 建物構造 | 木造銅板葺平家 |
| 延床面積 | 143㎡ |
| 建築時期 | 築80年以上 |
| 利用状況 | 空き家になって10年 |
| 価格(所有者等希望価格) | 300万円 |
| 付帯物件 | 物置有 |
| 修繕必要の有無 | 大幅な修繕必要(主に床) |
| 修繕の費用負担 | 要相談 |
| 設備 | 電 気:引き込み済 ガ ス:無 風 呂:灯油 水 道:上水道 下水道:浄化槽 トイレ:簡易水洗 車 庫:なし 庭 :有 |
| その他 | 付帯物件:農地あり |