物件登録番号 242
藤沢地域 売却
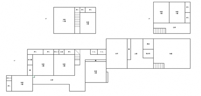
概要
| 所在地 | 一関市藤沢町砂子田 |
|---|---|
| 宅地面積 | 817.20m2 |
| 物件種別 | 売却 |
| 建物構造 | 木造2階建 |
| 延床面積 | 220.55m2 |
| 利用状況 | 空き家になって7年 |
| 建築時期 | 1987年建築 |
| 価格(所有者等希望価格) | 300万円 |
| 付帯物件 | 物置、土蔵有 |
| 修繕必要の有無 | 大幅な修繕が必要 |
| 修繕の費用負担 | 入居者負担 |
設備
| 電気 | 引き込み済み | ガス | プロパンガス |
|---|---|---|---|
| 風呂 | 灯油/薪 | 水道 | 上水道 |
| 下水道 | - | トイレ | 汲み取り |
| 車庫 | - | 物置 | - |
| 庭 | - | その他 | 農地、山林等を一括売却希望 |
