物件登録番号 274
室根地域 売却
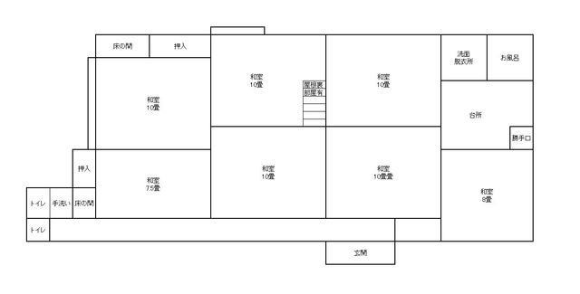
概要
| 所在地 | 一関市室根町矢越 |
|---|---|
| 宅地面積 | 1532.04m2 |
| 物件種別 | 売却 |
| 建物構造 | 木造平屋建て |
| 延床面積 | 114.87m2 |
| 利用状況 | 空き家になって7年 |
| 建築時期 | 不詳 |
| 価格(所有者等希望価格) | 300万円 |
| 付帯物件 | 物置、作業場有 |
| 修繕必要の有無 | 多少の修繕が必要 |
| 修繕の費用負担 | 入居者負担 |
設備
| 電気 | 引き込み済み | ガス | プロパンガス |
|---|---|---|---|
| 風呂 | 灯油兼薪 | 水道 | 井戸水 |
| 下水道 | - | トイレ | 汲み取り/洋式 |
| 車庫 | - | 物置 | - |
| 庭 | - | その他 | 農地山林一括売却希望 |
