物件登録番号 321
東山地域 売却
概要
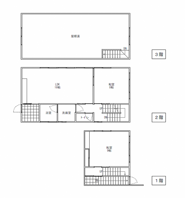
| 所在地 | 一関市東山町字東本町 |
|---|---|
| 宅地面積 | 368.78m2 |
| 物件種別 | 売却 |
| 建物構造 | 木造 |
| 延床面積 | 119.24m2 |
| 利用状況 | - |
| 建築時期 | 昭和60年 |
| 価格(所有者等希望価格) | 380万円 |
| 付帯物件 | - |
| 修繕必要の有無 | - |
| 修繕の費用負担 | - |
設備
| 電気 | 引き込み済み | ガス | プロパンガス |
|---|---|---|---|
| 風呂 | 灯油 | 水道 | 上水道、自然排水 |
| 下水道 | - | トイレ | 汲み取り |
| 車庫 | 有 | 物置 | 有 |
| 庭 | 有 | その他 | 原野(274㎡)山林(275㎡)付き |
物件登録番号 321
東山地域 売却
| 所在地 | 一関市東山町字東本町 |
|---|---|
| 宅地面積 | 368.78m2 |
| 物件種別 | 売却 |
| 建物構造 | 木造 |
| 延床面積 | 119.24m2 |
| 利用状況 | - |
| 建築時期 | 昭和60年 |
| 価格(所有者等希望価格) | 380万円 |
| 付帯物件 | - |
| 修繕必要の有無 | - |
| 修繕の費用負担 | - |
| 電気 | 引き込み済み | ガス | プロパンガス |
|---|---|---|---|
| 風呂 | 灯油 | 水道 | 上水道、自然排水 |
| 下水道 | - | トイレ | 汲み取り |
| 車庫 | 有 | 物置 | 有 |
| 庭 | 有 | その他 | 原野(274㎡)山林(275㎡)付き |