物件登録番号 352
川崎地域 売却
概要
| 所在地 | 一関市川崎町門崎 |
|---|---|
| 宅地面積 | 771.23m2 |
| 物件種別 | 売却 |
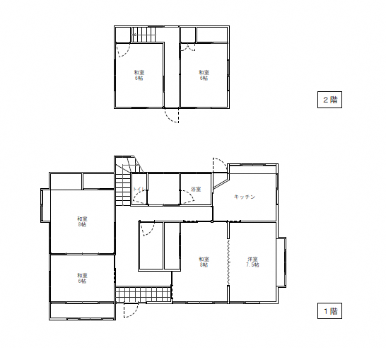
| 建物構造 | 木造2階建 |
| 延床面積 | 119.27m2 |
| 利用状況 | 空き家になって1年 |
| 建築時期 | 昭和55年建築 |
| 価格(所有者等希望価格) | 350万円 |
| 付帯物件 | 土蔵有 |
| 修繕必要の有無 | 多少の修繕が必要 |
| 修繕の費用負担 | 入居者負担 |
設備
| 電気 | 引き込み済み | ガス | プロパンガス |
|---|---|---|---|
| 風呂 | 灯油 | 水道 | 上水道 |
| 下水道 | 汲み取り | トイレ | - |
| 車庫 | - | 物置 | 有 |
| 庭 | 有 | その他 | - |
物件登録番号 352
川崎地域 売却
| 所在地 | 一関市川崎町門崎 |
|---|---|
| 宅地面積 | 771.23m2 |
| 物件種別 | 売却 |
| 建物構造 | 木造2階建 |
| 延床面積 | 119.27m2 |
| 利用状況 | 空き家になって1年 |
| 建築時期 | 昭和55年建築 |
| 価格(所有者等希望価格) | 350万円 |
| 付帯物件 | 土蔵有 |
| 修繕必要の有無 | 多少の修繕が必要 |
| 修繕の費用負担 | 入居者負担 |
| 電気 | 引き込み済み | ガス | プロパンガス |
|---|---|---|---|
| 風呂 | 灯油 | 水道 | 上水道 |
| 下水道 | 汲み取り | トイレ | - |
| 車庫 | - | 物置 | 有 |
| 庭 | 有 | その他 | - |