物件登録番号 370
室根地域 賃貸・売却
概要
| 所在地 | 一関市室根町矢越 |
|---|---|
| 宅地面積 | 2431m2 |
| 物件種別 | 賃貸・売却 |
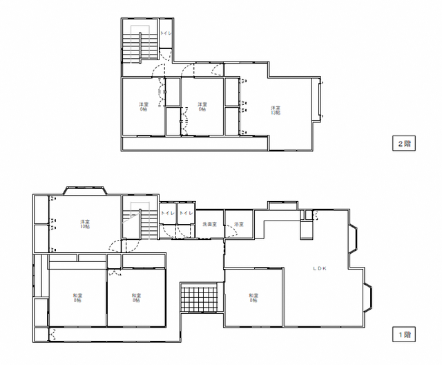
| 建物構造 | 木造2階建 |
| 延床面積 | 219.61m2 |
| 利用状況 | 空き家になって半年 |
| 建築時期 | 平成3年 |
| 価格(所有者等希望価格) | 売却:600万円(交渉可) 賃貸:月額5万円 |
| 付帯物件 | 物置小屋有 |
| 修繕必要の有無 | 障子張替、壁など |
| 修繕の費用負担 | 売却:購入者負担 賃貸:所有者負担 |
設備
| 電気 | 引き込み済み | ガス | プロパンガス |
|---|---|---|---|
| 風呂 | ガス | 水道 | 井戸 |
| 下水道 | なし | トイレ | 汲み取り |
| 車庫 | 有 | 物置 | 有 |
| 庭 | 有 | その他 | 賃貸の場合、ペット飼育不可 |
