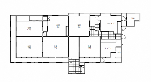
物件登録番号 372
藤沢地域 売却
概要
| 所在地 | 一関市藤沢町新沼 |
|---|---|
| 宅地面積 | 642m2 |
| 物件種別 | 売却 |
| 建物構造 | 木造銅板葺平家 |
| 延床面積 | 143m2 |
| 利用状況 | 空き家になって10年 |
| 建築時期 | 築80年以上 |
| 価格(所有者等希望価格) | 300万円 |
| 付帯物件 | 物置有 |
| 修繕必要の有無 | 大幅な修繕必要(主に床) |
| 修繕の費用負担 | 要相談 |
設備
| 電気 | 引き込み済み | ガス | 無 |
|---|---|---|---|
| 風呂 | 灯油 | 水道 | 上水道 |
| 下水道 | 浄化槽 | トイレ | 簡易水洗 |
| 車庫 | なし | 物置 | - |
| 庭 | 有 | その他 | 付帯物件:農地あり |
物件登録番号 372
藤沢地域 売却
| 所在地 | 一関市藤沢町新沼 |
|---|---|
| 宅地面積 | 642m2 |
| 物件種別 | 売却 |
| 建物構造 | 木造銅板葺平家 |
| 延床面積 | 143m2 |
| 利用状況 | 空き家になって10年 |
| 建築時期 | 築80年以上 |
| 価格(所有者等希望価格) | 300万円 |
| 付帯物件 | 物置有 |
| 修繕必要の有無 | 大幅な修繕必要(主に床) |
| 修繕の費用負担 | 要相談 |
| 電気 | 引き込み済み | ガス | 無 |
|---|---|---|---|
| 風呂 | 灯油 | 水道 | 上水道 |
| 下水道 | 浄化槽 | トイレ | 簡易水洗 |
| 車庫 | なし | 物置 | - |
| 庭 | 有 | その他 | 付帯物件:農地あり |